REFERENZAUSWAHL BEBAUUNGSPLÄNE | STÄDTEBAU:

Langjährige Erfahrung in der Aufstellung und Bearbeitung von Bebauungsplänen | Flächennutzungsplänen | Satzungen für Innen- und Außenbereich | Städtebauliche Untersuchungen | seit 1979

Winhöring B-Plan Nr. 36 |
Wohnbebauung Landshuter Strasse | 2021/2025 

Mehring B-Plan Nr. 23 |
Wohnbebauung Hohenwart | 2023/2025 in Bearbeitung

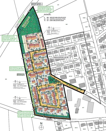
Neuötting B-Plan Nr. 47 |
Gewerbegebiet Eisenfelden Ost | 2022

+ Änderung Flächennutzungsplan

Burgkirchen B-Plan Nr. 60 |
Obere Terrasse III Am Kindergarten St. Martin | WA und KiTa | 2021

Winhöring B-Plan Nr. 40 |
Unterau Süd II Wohnbebauung | 2021

Winhöring B-Plan Nr. 6 |
Kronberg Erweiterung West | 2021

Pleiskirchen B-Plan Nr. 10 |
Gewerbegebiet Pleiskirchen Süd II | 2021

Altötting B-Plan Nr. 89 |
WA Nördlich der Holzhauser Straße | 2018

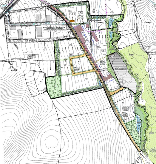
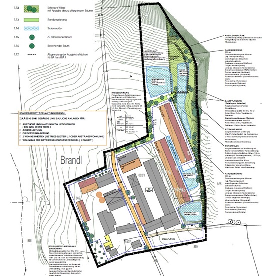
Garching a.d.Alz B-Plan |
Sondergebiet Tierhaltung | 2015

Neuötting B-Plan Nr. 15 |
Gewerbegebiet | Aufstellung 1996

+ laufende Änderungen/ Ergänzungen

Winhöring B-Plan Nr. 6 |
Kronberg Erweiterung (Am Kohlöder Feld) | 2012

Winhöring B-Plan Nr. 29 |
Solarpark | 2009

Neuötting Städtebauliche Untersuchung |
Forumgelände an der Simbacher Straße | 2009

Neuötting B-Plan Nr. 34 |
Südlich Michaelistraße | 2002

Altötting B-Plan Nr. 62 |
WA Nördlich der äußeren Kreszentiaheimstraße | Aufstellung 1998

+ nachfolgende Änderungen

Altötting Städtebaulicher Vorentwurf |
Konzept mit betreutem Wohnen und neuer Geschäftsbebauung im Bereich Altes Postamt | 1998