REFERENZAUSWAHL KONZEPTE | SIGEKO:

Arbing KiGa VG Reischach |
Sanierung und Umnutzung Alte Schule zur KiTa mit Option Erweiterung / Abbruch + Ersatzbau | Machbarkeitsstudie | 2022

Altötting Staatl. Realschule |
Machbarkeitsstudie für einen Neubau mit 44 Klassen, Fachräumen und Einfachturnhalle | Ausarbeitung von 5 Konzepten | 2020

Neuötting Max-Fellermeier-Grund- und Mittelschule |
Machbarkeitsstudie für Umbau und Erweiterung in Abschnitten | Bestandsunterlagen mit Daten | System von Einzelbausteinen mit Grundrissen und Hauptansichten für Erweiterungsbauten in unterschiedlichen Kombinationen | Flächenaufstellungen, Kosten und Modell | 2019

Neuötting KiTa Studie |
Zukunft der Kinderbetreuung 0-6 Jahre in Neuötting | Standorte und Entwicklungsmöglichkeiten | Studie und Ausarbeitung für 3 Grundstücke | 2019

Reischach Neues Rathaus |
Bestandserfassung Anwesen Öttinger Str. 1 + Studie mit 3 Konzepten für Umbau, Erweiterung und Anbau | 2019

Garching a.d.Alz Alte Turnhalle |
Untersuchung für Umnutzung in 2 Varianten | 2013

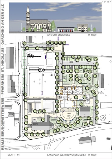
Garching a.d.Alz Gemeindehaus St. Nikolaus |
Neuerrichtung | Teilnahme Wettbewerb | 2013

Winhöring Einfamilienwohnhaus am Hang |
Entwurf für Neubau | 2007

Neuötting St. Paulusstift |
Errichtung von 3 Wohngruppen und 2 Tagesstätten | Konzept unter Beibehaltung der Fassade Burghauser Straße | 2006

Neuötting Geschäfts- und Wohnhaus (ehem. Kaufhaus) am Stadtplatz |
Konzept für Umgestaltung, Nutzungsänderung und Brandschutz | 2005

Garching a.d.Alz Neubau einer 3-fach-Turnhalle mit Kegelbahn |
Wettbewerb | 2002

REFERENZLISTE SIGEKO | SICHERHEITS- UND GESUNDHEITSSCHUTZKOORDINATION:

Nachweis für Tätigkeit als Sicherheits- und Gesundheitsschutzkoordinator nach Baustellenverordnung | M. Brodmann Architekt Dipl.-Ing. (FH) + Mitarbeiter Dipl.-Ing. (FH) bis 2022


Bei den genannten Projekten wurden je nach Bedarf alle nach den rechtlichen Anforderungen notwendigen Arbeiten durchgeführt:

  • Koordination der Planungsphase
  • Erstellung SiGe-Plan | Unterlage | Vorankündigung
  • Koordination der Ausführungsphase
  • Bauüberwachung | Koordinatortätigkeit

Gemeindekindergarten Krippe | Polling | Gemeinde | Neubau | 2021

Mittelschule | Neuötting | Stadt | Energ. Sanierung der Haupfassaden | 2017

Kirche Mariä Himmelfahrt | Asten | Erzbischöfl. Ordinariat | Fassadensanierung | 2016/2017

Herzog-Ludwig-Realschule (Fremdpl.) | Altötting | Landkreis | Erweiterung | 2015-2017

Alter Bahnhof | Tüßling | Markt Tüßling | Sanierung | 2015

Pfarrzentrum St. Nikolaus | Mühldorf | Erzbischöfl. Ordinariat | Brandschutz + Umbau | 2014/2015

KuMax-Gymnasium (Fremdpl.) | Burghausen | Landkreis | Neubau Turnhallen + Klassen | 2013-2016

Aventinus-Gymnasium (Fremdplanung) | Burghausen | Landkreis | Neubau Turnhalle | 2012-2014

Krippe Don-Bosco | Neuötting | Stadt | Neubau 3 Gruppen U3 | 2012/2013

Kirche St. Josef | Töging | Erzbischöfl. Ordinariat | Außen- und Innenrenovierung | 2010-2012

Grund- und Hauptschule | Neuötting | Stadt | Energ. Sanierung BA 1 | 2009/2010

3-fach Turnhalle (Fremdplanung) | Altötting | Landkreis | Neubau | 2008

Staatl. Berufsschule FOS BOS | Altötting | Landkreis | Umbau- und Erweiterungsbau | 2006-2008

Produktionshalle Steinfertigung | Tüßling | HABA-Beton | Abbruch + Neubau | 2006/2007

Produktionshalle Rohrfertigung | Teising | HABA-Beton | Umbau + Erweiterungsbau | 2005

Betriebshalle | Garching a.d.Alz | HABA-Beton | Flachdachsanierung | 2004

Grundschule Fluchttreppenanlage | Neuötting | Stadt | Neubau in Stahlkonstruktion | 2004

Wohnanlage | Traunreut | Privat | Sanierung | 2004

KiGa St. Laurentius (Fremdplanung) | Mühldorf | Erzbischöfl. Ordinariat | Umbau + Sanierung | 2004

Einfamilienhaus | Garching | Privat | Neubau | 2004

Einfamilienhaus | Tüßling | Privat | Neubau | 2004

5 innerstädt. Gebäude | Altötting | Raiffeisen-Volksbank | Abbruch | 2004

Produktionshalle Rohrfertigung | Nussdorf (A) | HABA-Beton | Erweiterungsbau | 2004

Bildungszentrum | Altötting | Handwerkskammer | Fassadeninstandsetzung | 2004

Kindergarten St. Pius | Mühldorf | Erzbischöfl. Ordinariat | Umbau + Sanierung | 2003

Pausenhalle Grund- und Teilhauptschule | Unterneukirchen | Gemeinde | Umbau + Sanierung | 2003

Bildungszentrum | Traunstein | Handwerkskammer | Sanierung Flachdach + Lichtbänder | 2003

Schulturnhalle | Unterneukirchen | Gemeinde | Sanierung Dach + Fassade | 2003

Wohnanlage 24 WE | Neuötting | Baugenossenschaft | Sanierung | 2002

Wohnanlage 6 WE | Neuötting | Baugenossenschaft | Umbau +  Sanierung | 2002