REFERENZAUSWAHL SANIERUNG:

Winhöring Leichenhaus |
Sanierungsmaßnahme | LP 1-8 | FS 2023

Altötting Stiftshaus |
Einzeldenkmal | Sanierungsmaßnahme und Umbau für 2 Wohngruppen | LP 1-5 | FS 2020

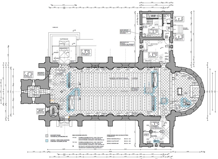
Asten Kirche Mariä Himmelfahrt |
Fassadensanierung | 2015-2017

Neuötting Sommerkeller mit Längsbau + Eiskellern |
Einzeldenkmal | Umbau, Sanierung und Errichtung eines Nebengebäudes | FS 2016 | Denkmalschutzmedaille 2017

Bestand vor Sanierung

Tüßling Alter Bahnhof |
Einzeldenkmal | Sanierungsmaßnahmen und Museales Konzept | FS  BA 1 2016 | FS BA 2 2023

Bestand vor Sanierung

Neuötting Stadthaus |
Sanierung der Fassade und Errichtung einer Zugangsrampe | FS 2014

Bestand vor Sanierung

Altötting Stadthaus |
Sanierung und Nutzungsänderung | FS 2014

Bestand vor Sanierung

Neuötting Stadthaus |
Sanierung der Fassade | FS 2013

Vor Restaurierung

Töging Kirche St. Josef |
Renovierung in 2 Bauabschnitten | 2010-2012 

Garching a.d.Alz Kirche St. Nikolaus |
Bestandsaufnahme und Innenrenovierung | FS 2008

Bestand vor Sanierung

Engelsberg Kirche St. Andreas |
Innenrenovierung | FS 2001

Feichten Kindergarten 2 Gruppen |
Umbau und Sanierung des denkmalgeschützten Gesindehauses (17.JH) des Pfarrhofes mit Neubau Mehrzweckraum | ARGE Brodmann/ Graf | FS 1994

Bestand vor Sanierung

REFERENZLISTE SANIERUNG:

Leichenhaus | Winhöring | Gemeinde | Sanierung | 2023

Alter Bahnhof Einzeldenkmal | Tüßling | Markt Tüßling | Sanierung | BA 2 2023

Pfarrheim Mariä Himmelfahrt | Asten | Pfarrei | Ertüchtigung Brandschutz + Außentreppe | 2021-2023

Stiftshaus Einzeldenkmal | Altötting | Privat | Sanierungsmaßnahme + Umbau für 2 Wohngruppen | LP 1 5 | 2019/2020

2-Fachturnhalle | Winhöring | Gemeinde | Sanierung | 2017/2018

Stadthaus Einzeldenkmal | Neuötting | Privat | Konzept für Sanierung + Umbau | 2015/2016

Einzeldenkmal | Neuötting | Privat | Umbau und Sanierung | 2013-2016

Alter Bahnhof Einzeldenkmal | Tüßling | Markt Tüßling | Sanierung | BA 1 2016

Stadthaus mit Apotheke | Neuötting | Privat | Neugestaltung Fassade + Barrierefreiheit | 2014

Stadthaus | Altötting | Privat | Umbau + Sanierung | 2013/2014

Kirche Herz-Jesu | Garching a.d.Alz | Pfarrei St. Nikolaus | Außenrenovierung | 2013

Kirche Mariä Himmelfahrt | Asten | Erzbischöfliches Ordinariat | Fassadensanierung | 2011-2017

Kirche St. Josef | Töging | Erzbischöfliches Ordinariat | Außen- und Innenrenovierung | 2010-2012

Stadthaus | Eggenfelden | Privat | Bestandsaufnahme + Umbaukonzept | 2010/2011

Stadtplatzsanierung | Neuötting | Stadt | Nikolausbrunnen LP 5-9 | 2010

Pfarrheim | Garching a.d.Alz | Pfarrei | Konzept für Sanierung + Brandschutzmaßnahmen | 2008

Stadthaus | Neuötting | Privat | Konzept für Brandschutz + Umbau + Sanierung | 2008

Stadthaus Einzeldenkmal mit Rückgebäuden | Neuötting | Privat | Bestandsaufnahme | 2007

Einzeldenkmal mit Nebengebäude | Neuötting | Privat | Bestandsaufnahme + Umbau | 2007

Burghauser Tor | Neuötting | Stadt | Aussensanierung | 2006

Stadthaus | Neuötting | Privat | Voruntersuchung zu  Sanierung + Umnutzung | 2006

Stadthaus Denkmal mit Arkade | Neuötting | Privat | Voruntersuchung Sanierung | 2006

Stadtplatz | Neuötting | Stadt | Sanierung Beleuchtung Hochbautechn. Leitung | 2006-2008

Kirche St. Nikolaus | Garching a.d.Alz | Pfarrei | Bestandsaufnahme + Innenrenovierung | 2006-2008

Stadthaus | Neuötting | Privat | Sanierung von Brandschäden + Werbekonzept | 2005

Geschäfts- und Wohnhaus 6 Ebenen Stadtplatz | Neuötting | Privat | Sanierungs- und Umgestaltungskonzept | 2005

Kirche St. Andreas | Engelsberg | Erzbischöfliches Ordinariat | Innenrenovierung | 1998-2001

Geschäftsstelle | Altötting | Raiffeisen-Volksbank | Sanierung | 2001

Kirche St. Josef | Töging | Erzbischöfliches Ordinariat | Sanierung Voruntersuchung | 2001

Stadthaus mit Restaurant Praxis Wohnen | Neuötting | privat | Renovierung | 2000

Stadthaus | Neuötting | privat | Sanierung und Umbau | 1994

Kindergarten Sonne | Feichten | 2 Regelgruppen | Umbau und Sanierung (17.Jh Einzeldenkmal) + Neubau MZW-Raum | ARGE | 1994